Galeria Centrum
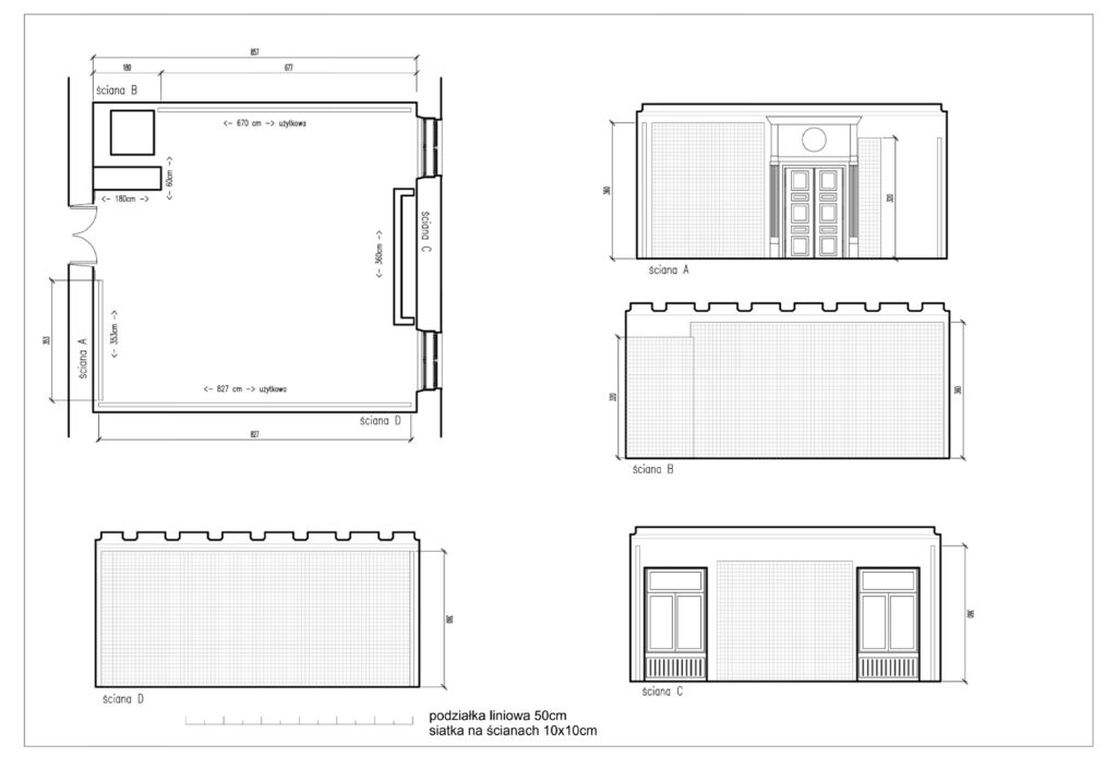
Galeria Centrum to jedna z dwóch przestrzeni wystawienniczych mieszcząca się w Międzynarodowym Centrum Sztuk Graficznych w Krakowie.

Galeria Eksperyment jest drugą przestrzenią wystawienniczą mieszcząca się w Międzynarodowym Centrum Sztuk Graficznych w Krakowie. W Galerii Eksperyment znajduje się prasa graficzna która umożliwia również prowadzenie warsztatów graficznych.
Obie Galerie mieszczą się na 2 p. w kamienicy na Rynku Głównym 29 w samym centrum Krakowa.
Artystów zainteresowanych organizacją wystawy w Galerii Centrum prosimy o kontakt z biurem SMTG: tel. 12 422 19 03, email: smtg.krakow@gmail.com